【PonoDesign 施工事例 vol.90】
淡い色のタイルアプローチに、機能門柱のコンクリート柄×ブラックの配色が映えるシンプルスタイルの外構です。

右:打合せ用イメージパース図

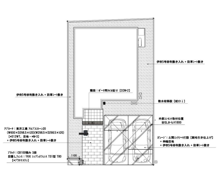
こちらが打合せ時にお渡しさせていただく平面・立面図です。
実際の施工写真と比べながら、こだわりポイントと採用しているエクステリアのご紹介をさせていただきます♩
黄金比から導き出された配置は美しいシルエットを演出した機能門柱

右:打合せ用イメージパース図
機能門柱:YKK ルシアスウォール RJ02型 演出照明タイプ【カームブラック】
ポスト・宅配ボックス:YKK ルシアス宅配ポスト3型【カームブラック】
表札:福彫 エクセラ【ウッディホワイト】
門柱はYKKの「ルシアスウォール」を採用しており、石材柄のパネル素材がアクセントになっています。塀の素材は玄関ドアと合わせた木調色、単色だけではなく、石材柄・コンクリート・金属錆柄など全9色からお選びいただけます。
新しくなったこのルシアスウォールは、「シンプルな壁」を追求したデザインになっており、
黄金比から導き出された配置は美しいシルエットを演出しています。

設置されている宅配ボックスは正面納まりと側面納まりの2種類あって、
従来の納まりの前入れ・前出し、もしくは前入れ・後出しの2種類から選択できる「正面納まり」と、宅配ポストを隠して設置したい場合や道路付近に門柱を設置したい時などにオススメの「側面納まり」になります。
ウォールのような役割を果たしてくれるので、玄関前の目隠しとしてお家の中を見られないように配置することも可能です◎
玄関前の目隠しについての施工事例はコチラ↓
【玄関前の目隠しもスタイリッシュにまとめたシンプルモダン外構】
タイルの敷き方で動きのあるアプローチ

右:打合せ用イメージパース図
アプローチ:東洋工業 アルプスストーン【S12WT】
玄関まで繋がったアプローチにはタイルを使用しており、タイルを直線上に配置するのではなく、ランダムに配置することでアプローチに動きが出てメリハリのあるデザインになります◎
下の画像のようにタイルをランダムではなく直線的に配置することで、よりスタイリッシュにシャープな印象を与えてくれたりします。

タイルだけじゃなく、舗装材の置き方も縦・横、ランダムに配置、
また飛び石のようにとびとびに配置を変えることでそれぞれ雰囲気を変えることが出来ます◎
舗装材2色使用したアプローチ
【ツートンカラーがスタイリッシュなオープンスタイルエクステリア】
枕木を使用したアプローチ
【直線でクールな印象のカーポートと動きのあるアプローチが対照的なスタイリッシュ外構】
いかがだったでしょうか?
石材の素材の機能門柱が目を引くシンプルスタイル外構でした✨
希望の外構スタイル、用途に合わせたデザインもご提案させていただきます。
外構工事をご検討中の方はお気軽お問い合わせください♫
