【PonoDesign 施工事例 vol.96】
実用性を足し、より住みやすいお家に大変身したリフォーム外構

Before➡After


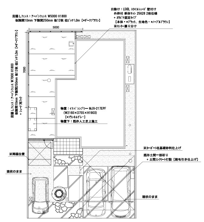
こちらが打合せ時にお渡しさせていただく平面・立面図です。
実際の施工写真と比べながら、こだわりポイントと採用しているエクステリアのご紹介をさせていただきます♩
目隠しフェンスでプライベート空間に

Before➡After
目隠しフェンス:アーバンフェンス 【ダークブラウン】
広々とした人工芝のお庭スペースに目隠しフェンスを設置しプライベート空間を演出!掃き出し窓が隣地側にあることで、どうしても視界が気になってしまいます。高さのあるフェンスを設置することで家の中にいても中の様子は外から見えなくなるのでより安心して生活することができます🎶
アーバンフェンスについては上記のURLにて詳しく掲載していますので是非ご覧ください。
今回は、フェンスの上部にタープ用フックを設置。掃き出し窓からフェンスに向かってシェードという日除けをつけることができ、夏の強い日差しから守ってくれます。さらに、プールなどお子様が外に出て遊ぶ際に日除けがあることで熱中症や日焼けが軽減されるので夏に外に出ても安心して遊ぶことができます!掃き出し窓から繋がっていることで窓を開けてお子様の様子を見ても陰になっているのでお母さんやお父さんも暑さの軽減になっています!

シェードを付けた際のイメージパース図
シェード:LIXIL スタイルシェード【本体・ブラック、生地色・ノーブルブラウン】
LIXILのシェードは、固定方法には4種類の方法があります。用途や設置場所に合わせた固定方法を選ぶことができます!
①フック固定…サッシの上部から下部に向かって固定する方法
②手すり固定…シェード下部に備え付けのリングを手すりとベルトで固定する方法
③デッキ固定…シェード下部に備え付けのリングをデッキフックで固定する方法
④カラビナ固定…シェード下部にカラビナフックを付け、リングで固定する方法
詳しくは、上部のURLもしくはこちらのリンクからご覧ください!!
シェードは出し入れが楽なので、使う時にパッと出すことができるのもポイントです。日差し対策としてもってこいなシェードですが、他にも日差し対策にぴったりな商品が数多くあります。夏の日差し対策について詳しくご紹介していますので、下のリンクから是非ご覧ください!
〇飛び出し防止のPCフェンス

フェンス:朝日スチール工業 朝日PCフェンス + PCフェンス門扉
お子様やペットの飛び出し防止としてはもちろん◎PCフェンスはシンプルなフェンスなのでお家の雰囲気を崩さずに設置することができます!
門扉を付けることでお庭スペース内の物置からの荷物の出し入れがしやすくなっています。門扉前まで車を持ってくることでタイヤや趣味道具の積み込みが楽々行えますね。さらに、サイクルポートがついていることで雨が降っていても濡れずに作業が行えるので雨の日でも安心ですね◎
カーポートの設置で快適な生活を実現!


カーポート:YKK エフルージュEX 600タイプ 2台用 【本体・カームブラック、熱線遮断ポリカ・アースブルー(マット調)】
Beforeでは機能門柱のみで少し寂しい印象ですが、カーポートを設置することで便利さに加えてお家全体の高級感もプラスになったように感じますね!カーポートは重厚感があるので、設置するだけで一気にお家のレベルがワンランク上がったように見えるのもカーポートの良さの1つです◎
↑(※1)
もし、カーポートやサイクルポートなどを設置したいけど悩んでいる方には砂利敷きをおすすめします!砂利にしていることで土間の解体や敷き直しが必要でなくなるので、コストもカーポートのみで押さえることができます!周りを土間にしたい場合でも砂利にしていると土間を新しく敷くだけで施工が出来るので、解体などの必要なし👌
いかがだったでしょうか。今回はお家の使い勝手をよくするような+aになるリフォームでした。外構を考える際に本当に必要なのかなと思う商品は数多くあるかもしれませんが、将来的に便利だろうなやあると便利かなという商品も数多くあるので悩んでいるという方にも将来を見据えてのご提案をさせていただきます。お気軽にお問合せください!ラインやインスタグラムでも受け付けております◎
